Продам 4-комнатную квартиру в Минске в Первомайском р-не, Туровского ул., 20
На карте
Об объекте
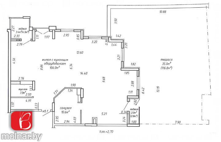
Просторная шестикомнатная квартира с террасой в ЖК "Маяк Минска".
ул. Туровского. 20
Дом носит имя художника-абстракциониста из Нидерландов Питера Мондриана!
В доме два высокоскоростных бесшумных лифта, консьерж, видеонаблюдение 24/7.
Развитая инфраструктура: уютный зеленый двор с современной детской площадкой, 190 м до ТРЦ «Дана Молл» с бесчисленным множеством магазинов и гипермаркетом «Грин». Национальная библиотека, детские сады, современная школа с бассейном через дорогу. В двух шагах сквер и храм Всех Святых.
Отличное транспортное сообщение: 250 м до станции метро Восток, автобусы, троллейбусы, маршрутные такси. Большая парковка возле дома. Удобный выезд на МКАД и М1.
Чистый воздух, вкусная артезианская вода.
Цены и наличие актуальны на 01.10.2025 г. Работаем по партнерской программе напрямую от застройщика.
Кредит / рассрочка / скидки.
Поможем продать ваш объект недвижимости для покупки этого.
Здесь вы будете жить счастливо и комфортно! Звоните прямо сейчас!
03.07.2024 | 1
№557685
Цена за м2 3 552 BYN
Местоположение
ГородМинск
Район городаПервомайский
УлицаТуровского ул.
Номер дома20
Параметры объекта
Количество комнат6
Этаж2
Этажность16
Площадь общая160.5
Площадь жилая119.5
Площадь кухни2
Основное
2024-07-03 16:01:13
Похожие объявления
Другие объявления по Туровского ул.
Мольнар
Скажите, что нашли эти контакты на сайте поиска
недвижимости БайРиэлти
недвижимости БайРиэлти
