Продам 3-комнатную квартиру в Минске в Первомайском р-не, Туровского ул., 14
На карте
Об объекте
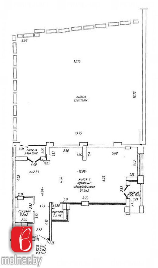
Просторная трехкомнатная квартира с террасой в ЖК "Маяк Минска" ул.Туровского, 14
Четыре высокоскоростных бесшумных лифта, консьерж, видеонаблюдение 24/7.
Развитая инфраструктура: уютный зеленый двор с современной детской площадкой, 190 м до ТРЦ «Дана Молл» с бесчисленным множеством магазинов и гипермаркетом «Грин». Национальная библиотека, детские сады, современная школа с бассейном через дорогу. В двух шагах сквер и храм Всех Святых.
Отличное транспортное сообщение: 250 м до станции метро Восток, автобусы, троллейбусы, маршрутные такси. Большая парковка возле дома. Удобный выезд на МКАД и М1.
Чистый воздух, вкусная артезианская вода.
Цены и наличие актуальны на 08.01.2026 г. Работаем по партнерской программе напрямую от застройщика.
Кредит / рассрочка / скидки.
Поможем продать ваш объект недвижимости для покупки этого.
Здесь вы будете жить счастливо и комфортно! Звоните прямо сейчас!
Ссылка на видео: https://www.youtube.com/watch?v=6wnrHKsQwEw
02.07.2024 | 1
№557902
Цена за м2 5 074 BYN
Местоположение
ГородМинск
Район городаПервомайский
УлицаТуровского ул.
Номер дома14
Параметры объекта
Количество комнат3
Этаж2
Этажность25
Площадь общая151.1
Площадь жилая92
Площадь кухни2
Основное
2024-07-02 19:49:17
Похожие объявления
Другие объявления по Туровского ул.
Мольнар
Скажите, что нашли эти контакты на сайте поиска
недвижимости БайРиэлти
недвижимости БайРиэлти
